Ricerca rapida
-
-
CERCA
Le informazioni contenute nel sito non costituiscono elemento contrattuale e le metrature sono indicative.

Civitanova Marche
Appartamento in Vendita a Civitanova Marche

Appartamento

Rif. 3423.1
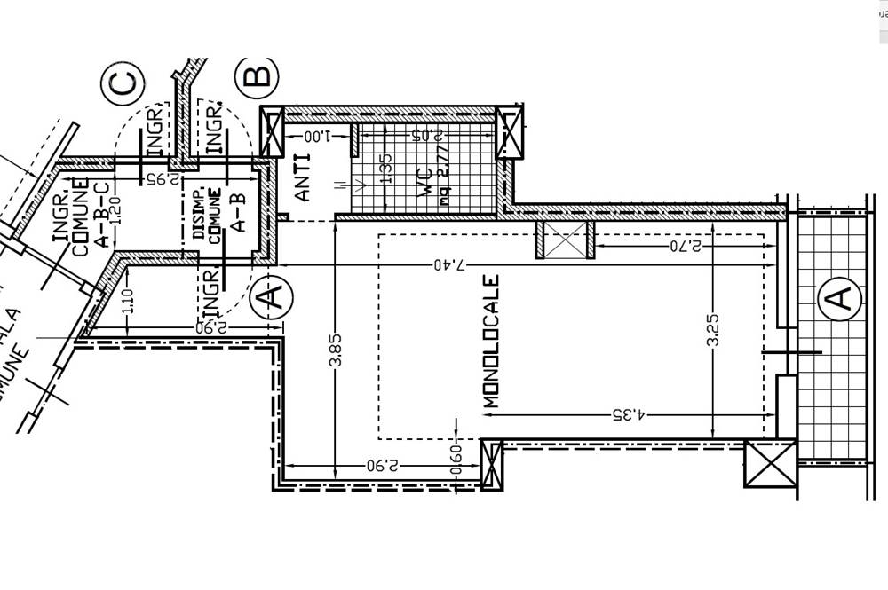
Quartiere San Marone, a soli 400 mt. da Piazza XX Settembre e Corso Umberto I e 700 mt. dal lungomare, disponibili in vendita tre appartamenti di nuova realizzazione.
L'intervento prevede la completa ristrutturazione con frazionamento di una unità di maggiore consistenza, venendosi a creare un trilocale e due monolocali.
Il trilocale "B", dispone di soggiorno, camera matrimoniale, una cameretta/studio e di un grande balcone perimetrale a soli 145.000,00 euro.
Il monolocale "C" in un unico ambiente con affaccio sul balcone ad euro 105.000,00.
Il monolocale "A" è VENDUTO.
Ottime le rifiniture, pavimenti in gres porcellanato, impianto di climatizzazione canalizzato caldo/freddo ad alta efficienza energetica, scaldabagno a pompa di calore, infissi termoacustici con vetrocamera, videocitofono.
Se cerchi l’immobile per le tue vacanze o per un investimento da mettere a reddito, hai trovato la soluzione giusta.
Pronta consegna.
Prezzi per il Trilocale "B" euro 145.000,00 e per il Monolocale "C" euro 105.000,00.Occasione imperdibile per un investimento sicuro.
Per maggiori informazioni potete contattarci al 392.5232893 o 0733.784307 - Brokers Immobiliare.

Caratteristiche

Codice
T.3423.1
Prezzo
105.000,00 EUR
Mq
38
Classe
A2
Locali
1
Camere
1
Bagni
1
Stato Immobile
Nuovo
Grado
Signorile
Posizione
Centro
Orientamento
Sud
Tipo Soggiorno
Soggiorno
Tipo Cucina
Angolo Cottura
Riscaldamento
Autonomo
Tipo Riscaldam.
Pompa di Calore
Tipo Impianto
Aria
Acqua Calda
Autonoma
Raffrescamento
Split
Infissi
PVC Doppio Vetro
Serramenti
Nuovo
Pavim. Giorno
Gres Porcellanato
Pavim. Cucina
Gres Porcellanato
Pavim. Bagno
Gres Porcellanato
Accessori
Aria Condizionata, Ascensore, Doppi Vetri, Porta Blindata, Ripostiglio, Video Citofono

MAPPA

Via Dante Alighieri 15 , Civitanova Marche (MC)
Cookie preference